
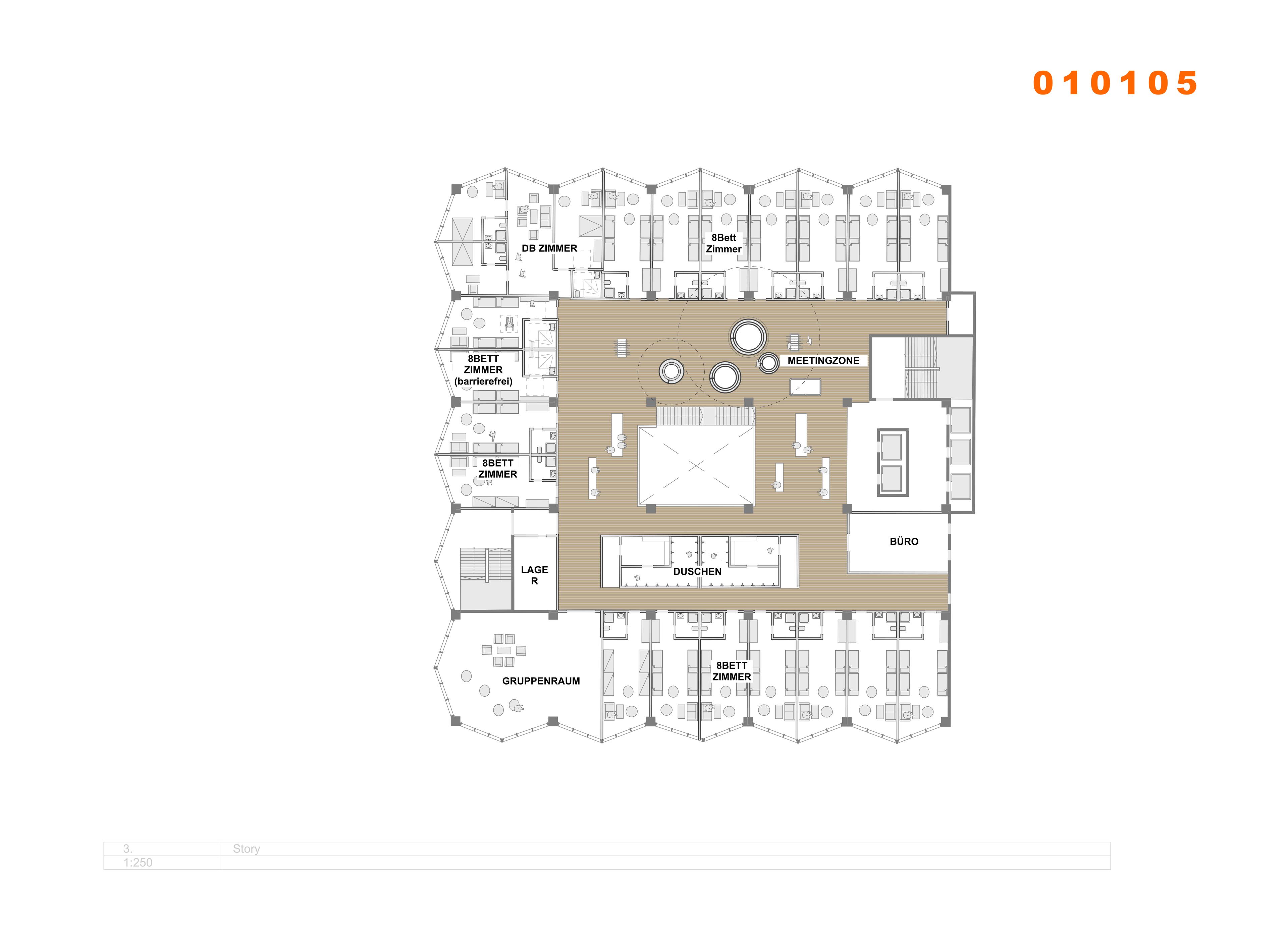
1. Platz
Technische Hochschule Mittelhessen, Gießen
Alles kann, nur kein Abriss, das ist das Motto des interdisziplinären Wettbewerbs zur
Ideenfindung für
die Umnutzung des leer stehenden Karstadt Celle. Am 20. Juni wurden die Gewinnerteams
verkündet
und alle Bewerber*innen in einer Wettbewerbsausstellung mitten in Celle präsentiert. Über
3.000
Besucher*innen haben die Ausstellung gesehen. Was für ein Erfolg für die Baukultur in
Niedersachsen, was
für eine Diskussion über die Umnutzung des leer stehenden Karstadt-Gebäudes in Celle!
So viel Gespräche über die Entwicklung der Innenstadt in Celle gab es zuletzt bei der Entscheidung gegen ein großes innerstädtisches Shopping Center vor 15 Jahren. Dieses Mal aber wurde die Bevölkerung intensiver mit einbezogen. Angeregt hat die Diskussion das neue Kollektiv Gemeinschaftswerk Werkgemeinschaft und alle, die mitgestaltet haben. Hier auf diesen nachfolgenden Seiten können Sie, angefangen mit den Preisträger*innen, alle Ergebnisse der Jurysitzung am 10. Juni 2024 einsehen.
2023 ging die
Ära Karstadt Celle zu Ende. Celle steht nicht alleine da. Leerstand gehört
mittlerweile zu jeder europäischen Stadt. Die goldene Zeit der Kaufhäuser ist überall passé.
Wie stumme Zeugen einer längst verblassten Epoche prägen heute ungenutzte Riesengebäude jede
Stadt. In Celle veränderte sich mit dem Leerstand des 1964 nach Plänen von Walter Brune
fertiggestellten Gebäudes auch das direkte innerstädtische Umfeld.
Leerstand zieht Leerstand nach sich. Was tun mit den ungenutzten Verkaufsflächen des
geräumten Kaufhauses, was mit dem Verlust der Ankerfunktion? Was tun mit dem umliegenden,
innerstädtischen Quartier? Doch anstelle einer Diskussion mit den Bewohner*innen über die
anstehenden Fragen, statt eines Gedankens über eine Umnutzung des umfangreichen Baukörpers
vertritt die Celler Stadtspitze Abrisspläne. Mit Narrativen vom vermeintlich hässlichen
„grauen Klotz“ wurde die Demontage bereits öffentlich vorbereitet.
Dabei ist das Weiterbauen
im Bestand doch ein Auftrag, dem sich heute alle Bauschaffenden,
auch Fachleute aus der Politik, der Stadtplanung und Stadtentwicklung verpflichtet sehen.
Wir meinen, dass die, die von Nachhaltigkeit reden, rein von der Begrifflichkeit her nicht
gleichzeitig sich für Abriss aussprechen können. Das widerspricht sich.
Nachhaltig zu planen und zu bauen ist Konsens in allen demokratischen Parteien. Es ist
Agenda in der Bundespolitik und in den Landesbauordnungen.
Auf die Ausschreibung des interdisziplinären Wettbewerbs zur Ideenfindung meldeten sich im
März 206 Teams, abgegeben haben im Mai über 90. Das waren mehr Einsendungen als je gedacht
und zeigt, dass nicht nur das Thema, sondern vor allem das Wettbewerbsverfahren viele
Gestalter*innen motiviert hat. Kollektive und kollaborative Arbeits und Gestaltungsformen,
neue Methoden, die dem „Gemeinsam schaffen wir das“ eine Basis geben, sind heute als
Strategie zur Realisierung der vielen gesellschaftlichen, wirtschaftlichen und eben auch
gestalterischen Fragen gefordert, eben ein Gemeinschaftswerk.
Interdisziplinär
war in diesem Verfahren auch die Jury unter Leitung von Prof. Anja Rosen von der Hochschule
Münster zusammen mit Prof. Bettina Georg, Prof. Jan Krause, Innenarchitektin Julia
Schneider, Prof. Christiane Sörensen, Landschaftsarchitektin, sowie dem Industriedesigner
Prof. Gunnar Spellmeyer, der Bildhauerin Prof. Bärbel Schlüter und Claus Becker,
Geschäftsführer des Schlosstheater Celle. Sich durch die über 90 Arbeiten zu arbeiten,
bedurfte einer gut vorbereiteten und gesetzten Struktur. Die geballte Ladung positiver
Energie, die die interdisziplinären Teams entwickelt haben, war auch für die Jury eine große
Motivation.
Dank an unseren Medienpartner
Ein langer
Weg aber ein guter Schritt. Danke an alle, die mitgestaltet haben:
Christian Burmester
Prof. Ekkehard Bollmann
Henry Deutsch
Andrea Hackenberg
Thomas Heisecke
Nicolas Helm
Prof. Dr. Markus Jager
Kristina Kasubke
Beate Kirsch
Jakob Kolbe
Dr. Ute Maasberg
Phillip Maussner
Kambysia Karl Hakim-Meibodi
Adrian-Alexander Hakim-Meibodi
Marten
Meyer-Bothling
Thilo Ott
Dr. Holger Pump Uhlmann
Marc Tiede
Bennet Tielker
Annika
Wagener
Michael Wagner
Susanne und Carsten Witt
Malte Wulf
Technische Hochschule Mittelhessen, Gießen Architektur, Entwerfen und integrales Bauen: Moritz Hoffart, Sebastian Uellner, Leonie Wolf mit Prof. Dipl.-Ing. Architektin Cilia Tovar Nachhaltiges Bauen: Prof. Dipl.-Ing. Architekt Maik Neumann Technische Gebäudeausrüstung: DGNB-Auditor, Dipl.-Ing (FH), M. Eng, Christian Hillgärtner Bauphysik: Dipl.-Ing. Architekt Wolfgang Döring Plastisches Gestalten und Freies Zeichnen: Prof. Thomas Vinson
Johanna Bangert, Anne Döpfer, Zacharias Haug mit Prof. Dipl.-Ing. Architektin Cilia Tovar, Architektur, Entwerfen und integrales Bauen, Prof. Dipl.-Ing. Architekt Maik Neumann, Nachhaltiges Bauen, DGNB-Auditor, Dipl.-Ing (FH), M. Eng, Christian Hillgärtner, Technische Gebäudeausrüstung, Dipl.-Ing. Architekt Wolfgang Döring, Bauphysik, Prof. Thomas Vinson, Plastisches Gestalten und Freies Zeichnen, alle Technische Hochschule Mittelhessen, Gießen
Architekten und Landschaftsarchitekten Dipl.-Ing. Thomas Höxtermann, Dipl.Ing. Benedict Hessling, Katharina Merzenich, Leona Schmidt, Ümmü Yalcin, Simon Busse, alle Nattler Architekten, Essen mit Dipl.-Ing. Holger Hinz, Werner Sobek AG, Astrid Michaelis, Szenografie, Lars Breuer, Bildender Künstler, Dr. Hermann-Josef Terbroke (MdB), Politik und Alexander Schmitz, Szenografie
Kambysia Hakim Meibodi, Dipl.-Ing. Architektur, Managing Director mit Sonja Steinhauer, Dipl. Ing. Architektur (FH), Adrian-Alexander Hakim-Meibodi, Grafik Designer und Dr. Birgit Nieskens, Lehrerbildnerin und Kulturschaffende, Wolfgang Reichert, Kulturschaffender, René Seelig, Grafik Designer, Tim Trittschack, Dachdeckermeister und Daniel Wunn, Künstler, Hannover und Celle
CELLULARge: Dipl.-Ing Rolf Kellner, Projektentwickler, Dipl.-Ing. Eva Lorey, Innenarchitektin, Dr.-Ing. Dirk Meyhöfer, Stadtforscher und Architekturjournalist, Philipp Möller, Genehmigungs- und Entwicklungscoach, Olaf Oldigs, Marken - und Kommunikationsberater, Dr. Jörg Schilling, Kunsthistoriker, Autor, Dipl.-Ing. Stephan Schrick, Architekt und Dipl. Des. Peter Unzeitig, Industrial Designer, alle Hamburg
Karla Andrea Castillo Rivadeneira, Jan Philipp Horchler, Jerome Velten mit Prof. Dipl.-Ing. Architektin Cilia Tovar, Architektur, Entwerfen und integrales Bauen, Prof. Dipl.-Ing. Architekt Maik Neumann, Nachhaltiges Bauen, DGNB-Auditor, Dipl.-Ing (FH), M. Eng, Christian Hillgärtner, Technische Gebäudeausrüstung, Dipl.-Ing. Architekt Wolfgang Döring, Bauphysik, Prof. Thomas Vinson, Plastisches Gestalten und Freies Zeichnen, alle Technische Hochschule Mittelhessen, Gießen